Rybnik, Śródmieście

Mieszkanie na sprzedaż

Opis nieruchomości

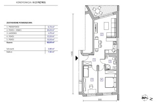
Przedmiotem oferty jest M4 o powierzchni 62 m2  w nowoczesnym apartamentowcu w Śródmieściu, a jednocześnie w spokojnej i cichej okolicy. Dodatkowym atutem jest miejsce parkingowe zaraz obok budynku oraz komórka lokatorska o powierzchni 3,60 m2 znajdująca się na parterze nieruchomości.

Mieszkanie składa się z dwóch sypialni, salonu połączonego z kuchnią, przedpokoju oraz łazienki. Z salonu jest wyjście na duży balkon o powierzchni aż 7,60 m2.
Wszystkie pomieszczenia są umeblowane i wyposażone tak jak widać na zdjęciach. W kuchni jak i łazience na wyposażeniu pozostają sprzęty AGD, więc mieszkanie jest gotowe do wprowadzenia bez wkładu finansowego.
Meble są wysokiej jakości, a szafy i meble kuchenne robione na wymiar. Salon jest przestronny i bardzo ustawny, a także bardzo dobrze doświetlony. We wszystkich oknach zostały zamontowane rolety elektryczne.
Nieruchomość ogrzewana nowoczesnym piecem gazowym, który odpowiada za ogrzewanie jak i za ciepłą wodę.

W okolicy sklepy, przystanki komunikacji miejskiej, miejsca do aktywnego spędzania czasu, droga regionalna Pszczyna-Racibórz.

Serdecznie polecamy i zapraszamy na prezentację. 

Jeśli chcesz wziąć kredyt hipoteczny, nasz doradca dysponuje ofertą wszystkich banków komercyjnych. Otrzymasz od nas tabelę z porównaniem kosztów oferty najkorzystniejszych kredytów hipotecznych oraz sprawdzisz swoją zdolność kredytową.

Opis oferty zawarty na stronie internetowej sporządzany jest na podstawie oględzin nieruchomości oraz informacji uzyskanych od właściciela, może podlegać aktualizacji i nie stanowi oferty określonej w art. 66 i następnych K.c.





 

Nota prawna

Opis oferty zawarty na stronie internetowej sporządzany jest na podstawie oględzin nieruchomości oraz informacji uzyskanych od właściciela, może podlegać aktualizacji i nie stanowi oferty określonej w art. 66 i następnych K.C.

Szczegóły oferty

Symbol oferty MKA-MS-3616
Powierzchnia 65,60 m²
Powierzchnia użytkowa 62,00 m²
Powierzchnia balkonów/tarasów 7,60 m²
Liczba pokoi 3
Piętro 2
Rodzaj budynku apartamentowiec
Standard
Opłaty w czynszu fundusz remontowy
Opłaty wg liczników gaz, prąd, woda
Liczba pięter w budynku 2
Stan lokalu do wprowadzenia
Mies. czynsz admin. 200 PLN
Okna PCV
Balkon duży
Rok budowy 2021
Ogrzewanie C.O. GAZOWE
Usytuowanie dwustronne

Kalkulator kredytowy

PLN
%
Wysokość raty

Kalkulator kosztów

PLN
PLN
PLN
PLN
PLN
PLN
%
PLN
Podatek od czynności cywilno-prawnych
Taksa notarialna (opłata notarialna)
VAT od taksy notarialnej (opłaty notarialnej)
Wniosek do WKW
VAT od wniosku do WKW
Prowizja agencji nieruchomości
VAT od prowizji agencji nieruchomości
Wypisy aktu notarialnego - około
RAZEM (cena + opłaty)

Uwaga: mogą wystąpić dodatkowe opłaty za założenie księgi wieczystej oraz ustanowienie hipoteki.

Podobne oferty

bez prowizji
mieszkanie na sprzedaż - Rybnik, Niedobczyce

mieszkanie na sprzedaż

Rybnik, Niedobczyce
3 pokoje 75,01 m2 7 465,66 zł/m2
bez prowizji
mieszkanie na sprzedaż - Rybnik, Paruszowiec

mieszkanie na sprzedaż

Rybnik, Paruszowiec
3 pokoje 78,00 m2 7 307,69 zł/m2

Napisz do nas

Proszę wypełnić to pole
Proszę wypełnić to pole
Proszę wypełnić to pole
Proszę wypełnić to pole

Ta strona wykorzystuje pliki cookies w celach statystycznych oraz w celu dostosowania naszych serwisów do indywidualnych potrzeb klientów. Zmiany ustawień dotyczących plików cookie można dokonać w dowolnej chwili modyfikując ustawienia przeglądarki. Korzystanie z tej strony bez zmian ustawień dotyczących cookies oznacza, że będą one zapisane w pamięci urządzenia.

rozumiem